PROJET ARGENTEUIL

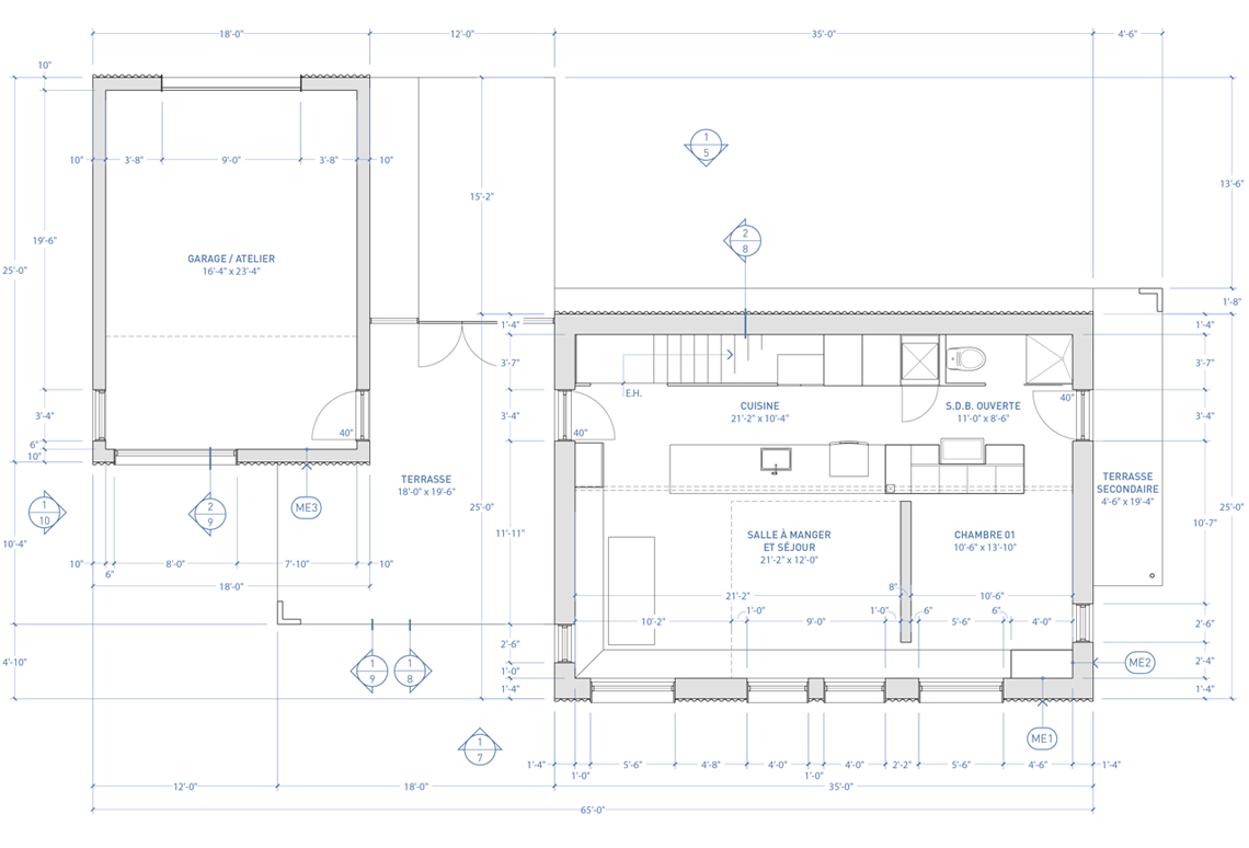
Le Projet Argenteuil est une résidence conçue autour des principes de l’architecture passive. Le développement volumétrique et conceptuel vise à optimiser l’efficacité énergétique tout en créant un espace de vie fonctionnel et accueillant. Les techniques de construction, associées à une isolation avancée et des matériaux soigneusement choisis, réduisent considérablement les besoins en chauffage et en climatisation. Le projet inclut une étude technique détaillée, avec des plans et devis précis pour garantir une exécution conforme aux exigences de performance. Cette résidence incarne un équilibre entre l’efficacité énergétique et un design pensé pour un mode de vie respectueux de l’environnement.