CENTRE DES SCIENCES DE MONTRÉAL _
EXPOSITION HUMAIN

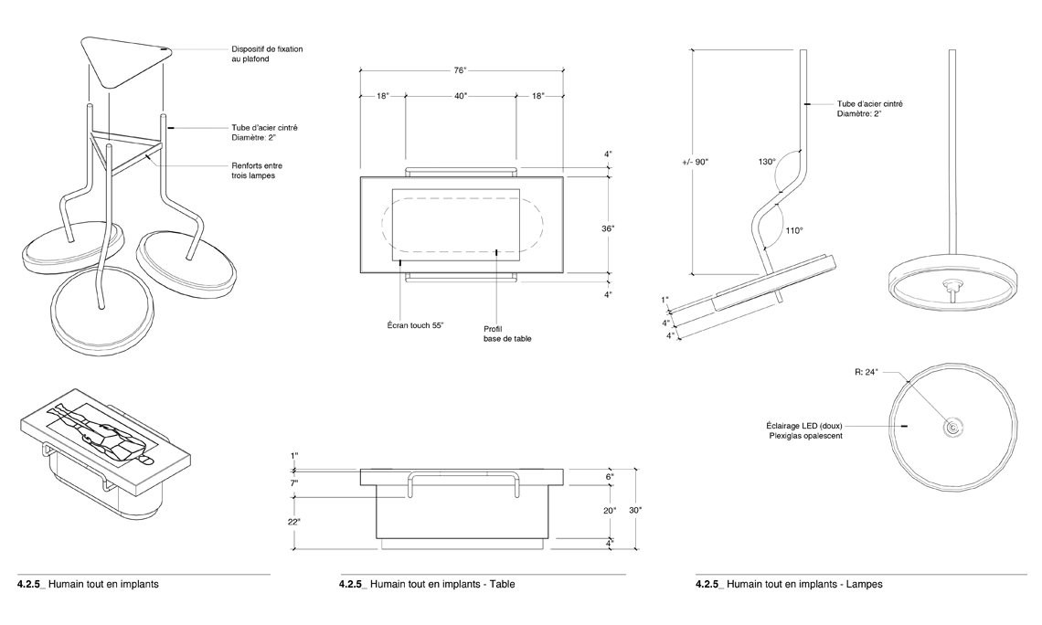
L’exposition Humain du Centre des Sciences de Montréal explore le corps humain sous différents angles, mettant en lumière ses capacités naturelles et les possibilités offertes par les avancées technologiques. Collaboration, à titre de lead designer, à cette deuxième phase du projet d’exposition de GSM project. Le mandat comprenait l’aménagement de la salle d’exposition, le développement conceptuel, la conception de mobilier sur mesure et la coordination technique et logistique. L’exposition présente de manière immersive et interactive les forces et faiblesses du corps humain, ainsi que les technologies permettant son amélioration, offrant une expérience éducative et dynamique pour le visiteur.